A
r
c
h
i
t
e
c
t
u
r
a
l
A
s
s
o
c
i
a
t
i
o
n
School
o
f
A
r
c
h
i
t
e
c
t
u
r
e
O
p
e
n
t
o
t
h
e
Public
Collections
DTA
Collections
Collections
All 858 records
Otto Koenigsberger. Deutsches Turnund Sportabzeichen certification, 1926.
Otto Koenigsberger. Practical Training Record, notebook, 1927
Otto Koenigsberger. Secondary School Certificates, February 1927.
Otto Koenigsberger. Summer House for Maas family, 1927
Otto Koenigsberger. Testimonials and related documents, AEG, 1928-1929
Otto Koenigsberger. Figure and animal studies, 1927-1929
Otto Koenigsberger. Letter of recomendation for Otto Koenigberger from Bauingenieur-Buro G. Mensch, 1929.
Otto Koenigsberger. Belegbuch, Technische Hochschule, Berlin, 1927-1929
Otto Koenigsberger. Boathouse, 1929
Otto Koenigsberger. Letter of recomendation for Otto Koenigberger from Bauingenieur-Buro G. Mensch, 1929
Decorative Panel for October
'Decorative Panel for August'
Decorative Panel for September
Decorative Panel for September
Otto Koenigsberger. Unidentified house, c1930
Otto Koenigsberger. Extension to Summer House for Maas family, 1930
Otto Koenigsberger. Official note certifying award of the medal for 'Rettung Aus Gefahr' to Otto Koenigsberger, 1930.
Decorative Panel for November
Decorative Panel for December
Decorative Panel for August
Decorative Panel for June
In Doubt colour engraving from a painting
Decorative Panel for July
Otto Koenigsberger. Small Country House near Berlin, c1930
Otto Koenigsberger. Berlin Technische Honchschule medals, c1931
Otto Koenigsberger. Justice Ministry Building: competition entry, c1931
Decorative Panel for March
Decorative Panel for January
Otto Koenigsberger. Diploma Project: Zoological Garden, 1931
Otto Koenigsberger. Land Development Plan, Wedding, Berlin, 1930-1931
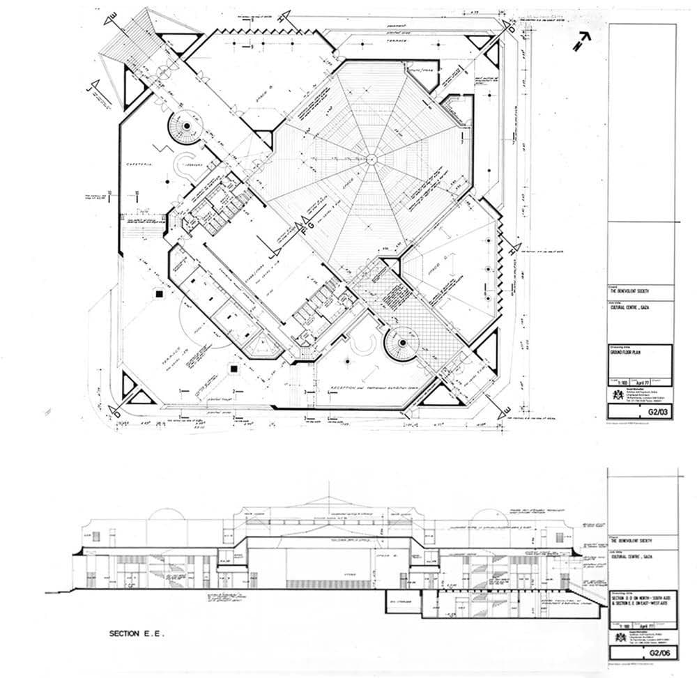
A-Shawa Cultural Centre, Gaza, Palestine.
DTA Archive
Collections
A-Shawa Cultural Centre, Gaza, Palestine.
A-Shawa Cultural Centre, Gaza, Palestine.
Mohamed Saad Mohaffel, A-Shawa Cultural Centre, Gaza (1988). Photograph courtesy of ArchNet CC BY-NC 4.0
Credit: Photograph courtesy of ArchNet, Jaber Jehad Badwan, 2023 and Rawanmurad, 2025, all CC BY 4.0
Related People
Mohamed Saad Mohaffel
Year of study 1967
Collections
Page:
1
2
3
...
29
Prev
Next
DTA Collections | A-Shawa Cultural Centre, Gaza, Palestine.