A
r
c
h
i
t
e
c
t
u
r
a
l
A
s
s
o
c
i
a
t
i
o
n
School
o
f
A
r
c
h
i
t
e
c
t
u
r
e
O
p
e
n
t
o
t
h
e
Public
Collections
DTA
Collections
Collections
All 857 records
Otto Koenigsberger. Deutsches Turnund Sportabzeichen certification, 1926.
Otto Koenigsberger. Practical Training Record, notebook, 1927
Otto Koenigsberger. Secondary School Certificates, February 1927.
Otto Koenigsberger. Summer House for Maas family, 1927
Otto Koenigsberger. Testimonials and related documents, AEG, 1928-1929
Otto Koenigsberger. Figure and animal studies, 1927-1929
Otto Koenigsberger. Letter of recomendation for Otto Koenigberger from Bauingenieur-Buro G. Mensch, 1929.
Otto Koenigsberger. Belegbuch, Technische Hochschule, Berlin, 1927-1929
Otto Koenigsberger. Boathouse, 1929
Otto Koenigsberger. Letter of recomendation for Otto Koenigberger from Bauingenieur-Buro G. Mensch, 1929
Decorative Panel for October
'Decorative Panel for August'
Decorative Panel for September
Decorative Panel for September
Otto Koenigsberger. Unidentified house, c1930
Otto Koenigsberger. Extension to Summer House for Maas family, 1930
Otto Koenigsberger. Official note certifying award of the medal for 'Rettung Aus Gefahr' to Otto Koenigsberger, 1930.
Decorative Panel for November
Decorative Panel for December
Decorative Panel for August
Decorative Panel for June
In Doubt colour engraving from a painting
Decorative Panel for July
Otto Koenigsberger. Small Country House near Berlin, c1930
Otto Koenigsberger. Berlin Technische Honchschule medals, c1931
Otto Koenigsberger. Justice Ministry Building: competition entry, c1931
Decorative Panel for March
Decorative Panel for January
Otto Koenigsberger. Diploma Project: Zoological Garden, 1931
Otto Koenigsberger. Land Development Plan, Wedding, Berlin, 1930-1931
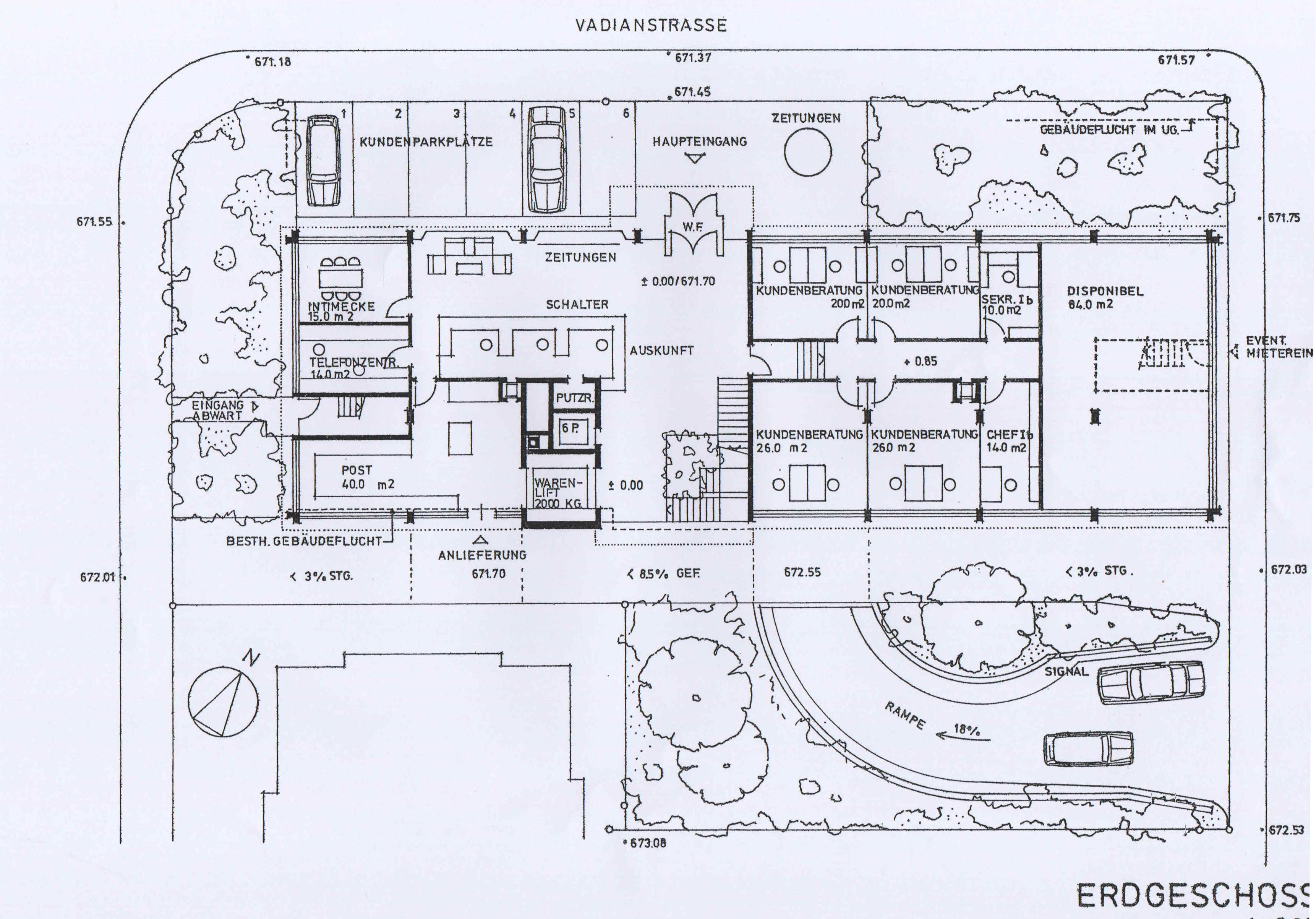
Publicitas Branch Office, St Gallen, Switzerland, 1979. Ground floor plan.
DTA Archive
Collections
Publicitas Branch Office, St Gallen, Switzerland, 1979. Ground floor plan.
Publicitas Branch Office, St Gallen, Switzerland, 1979. Ground floor plan.
John Steerwood (for Danzeisen + Voser), Publicitas Branch Office, St Gallen, Switzerland, 1979. Ground floor plan.
Credit: Courtesy of Sheena Steerwood
Collections
Page:
1
2
3
...
29
Prev
Next
DTA Collections | Publicitas Branch Office, St Gallen, Switzerland, 1979. Ground floor plan.