A
r
c
h
i
t
e
c
t
u
r
a
l
A
s
s
o
c
i
a
t
i
o
n
School
o
f
A
r
c
h
i
t
e
c
t
u
r
e
O
p
e
n
t
o
t
h
e
Public
Collections
DTA
Collections
Collections
All 858 records
Institut Superieur Pedagogique, Bukavu, Democratic Republic of the Congo
Aswan International Airport, Egypt
Aswan International Airport, Egypt
Conference Hall at 10th of Ramadan City, Sharqia
Conference Hall at 10th of Ramadan City, Sharqia
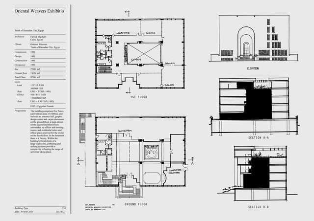
'Oriental Weavers’ Exhibition Hall and Offices, 10th of Ramadan City, Sharqia
El-Obour Elgohary Residence, Cairo
El-Obour Elgohary Residence, Cairo
El-Obour Elgohary Residence, Cairo
El-Obour Elgohary Residence, Cairo
'Oriental Weavers’ Exhibition Hall and Offices, 10th of Ramadan City, Sharqia
Samuel Bangura Building, Bank of Sierra Leone, Freetown
Lantern slide of hand drawn section, elevation and perspective drawings of an unknown building. Photographer, architect and publication unknown.
St. Albert's Catholic Chapel, University of Benin, Benin City
Design for C/H/6 and C/H/7 Staff Quarters, Public Works Department, Zomba, Nyasaland Protectorate, July 1957
Boat House, for the Ministry of Tourism, Mohale, Maseru, Lesotho
Villa Dundo, Barbados
Otto Koenigsberger. Summary Portfolio of Architectural Work, 1928-1941
Masite Cave House restoration, for the Ministry of Tourism, Environment and Culture, Masitise, Quthing, Lesotho
Thaba-Chitja Island Chalets, for Ministry of Toursim, Environment and Culture. Mohale, Maseru, Lesotho
'Oriental Weavers’ Exhibition Hall and Offices, 10th of Ramadan City, Sharqia
Kick4Life Center, Maseru, Lesotho
Leseli Community Center, for the AFM Church, Khubetsoana, Berea, Lesotho
Otto Koenigsberger. Ex Libris bookplate.
Office for the European Union, Maseru West, Lesotho
Effective Temperature Chart, Singapore. AA Department of Development and Tropical Studies.
Barrio Historico, Mission San Xavier del Bac, Tucson, Arizona.
Ruskin Punch, for Anthony C. Lewis and Associates: Citibank Headquarters, Port of Spain, Trinidad. Photograph courtesy of ACLA Architecture
Ruskin Punch, for Anthony C. Lewis and Associates: Halls of Justice, Port of Spain, Trinidad. Photograph courtesy of ACLA Architecture
Nishtar Medical College, Multan, Pakistan
'Lagos School', AA Department of Tropical Studies
DTA Archive
Collections
'Lagos School', AA Department of Tropical Studies
'Lagos School', AA Department of Tropical Studies
Albert Amartey, F.W. Smith, B. Sobowale, K.R. Surintraboon, V.P. Tarazi, 'Lagos School', AA Department of Tropical Studies, 1963
Credit: Published in the Architectural Association Journal, April 1963, pp302-309
Related People
Korani Ramakomud Surintraboon
Year of study 1963
Related Institutions
Architectural Association School of Architecture
Collections
Page:
1
...
27
28
29
Prev
Next